隔离开关是一种高压开关电器主要用于高压电路中 它是一种没有灭弧装置的开关设备,主要用来断开无负荷电流的电路,隔离电源,在分闸状态时有明显的断开点,以保证其他电气设备的安全检修。在合闸状态时能可靠地通过...			
			
										
												
							
				
	 电工基础
						电工基础
					三相电源绕组的星三角形联结方法
				电力系统的负载分为两大类,一类是单相负载,如照明等。一类是三相负载,如大多数电动机等动力负载。 在三相负载中常用的绕组连接方式有星形接法(Y)和三角形接法(△)。 在星形(Y)和三角形(△)接法中,所...			
			
										
												
							
				
	电路中的:感抗、容抗、阻抗
				(1).感抗 当交流电通过电感线圈时,线圈会产生感应电动势阻止电流变化,有阻碍电流流过的作用,称感抗。 它等于电感L与频率f乘积的2π倍。即:XL=WL=2πfL。 感抗在数值上就是电感线圈上电压和电...			
			
										
												
							
				
	工厂电气调试的工作流程?
				工厂电气安装完成后,需要进行电气调试,包括单机试车 联动试车 仪表校验 DCS打点等等,单机试车又有空载 无负荷 等等,请问具体的工作流程是怎么样的? 答:1、检查控制柜自身的配电线路,按照原理图,逐...			
			
										
												
							
				
	 电工基础
						电工基础
					等电位联结做法及注意事项
				等电位联结应根据规范要求,针对具体工程应确定那些需要等电位联结、确定合理、有效的联结方法。 等电位联结端子箱. 总等电位联结需做等电位联结部件:电气系统进线配电箱(柜)的PE排、接地体或其引线、建筑物...			
			
										
												
							
				
	 电工基础
						电工基础
					插座开关的安装布置
				【首要标准】 开关距地1.4m,插座距地0.3m。开关、插座距门口为150,开关不宜装在门后。 出水口大案下方不要有插座和开关,左右距离有。 电线(导体和绝缘外皮)截面不超过管内截面的40% 客厅一般...			
			
										
												
							
				
	1.5/2.5/4/6电线最大负荷是多少?
				查电工手册、1.5平方铜线截流量是19A。最大可负载19A×220V=4180W。 2.5平方铜芯线可带5500W, 4平方可带7260W, 6平方可带9680W。			
			
										
												
							
				
	 电工基础
						电工基础
					4平方电线负荷
				根据P=AU计算,工率=电流*电压!0.25mm 的线才通过1A!2.5/0.25=10A .用220V的话!220*10=2200W 一般情况,一平方铜线带4A电流,2.5平方能带10A电流,功率就...			
			
										
												
							
				
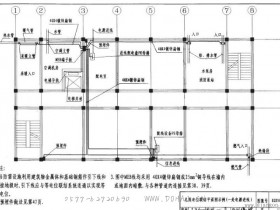
	电气设计需要注意的细节
				1.变压器的净高一般为1.9~2.3米,变压器顶部与梁底不能小于600mm,需要考虑母线、桥架的走向空间。 2.一条回路接电脑数量最多5-8台(一回路漏电电流不超过40%*30mA,一台电脑约1-2m...			
			
										
												
							
				
	三相五线制与三相四线制区别
				三相五线制与三相四线制是不同的供电接地系统,三相五线制是将工作零线和保护地线完全分开,分为A、B、C、N、PE;而三相四线是A、B、C、PEN是零地合一的,PEN不绝缘;我们民用和一般工厂、商业用电都...			
			
										
												
							
				
	
